DESIGN(設計する)

= 当社のオリジナルプラン例をご覧ください =
平面&立面プラン

 
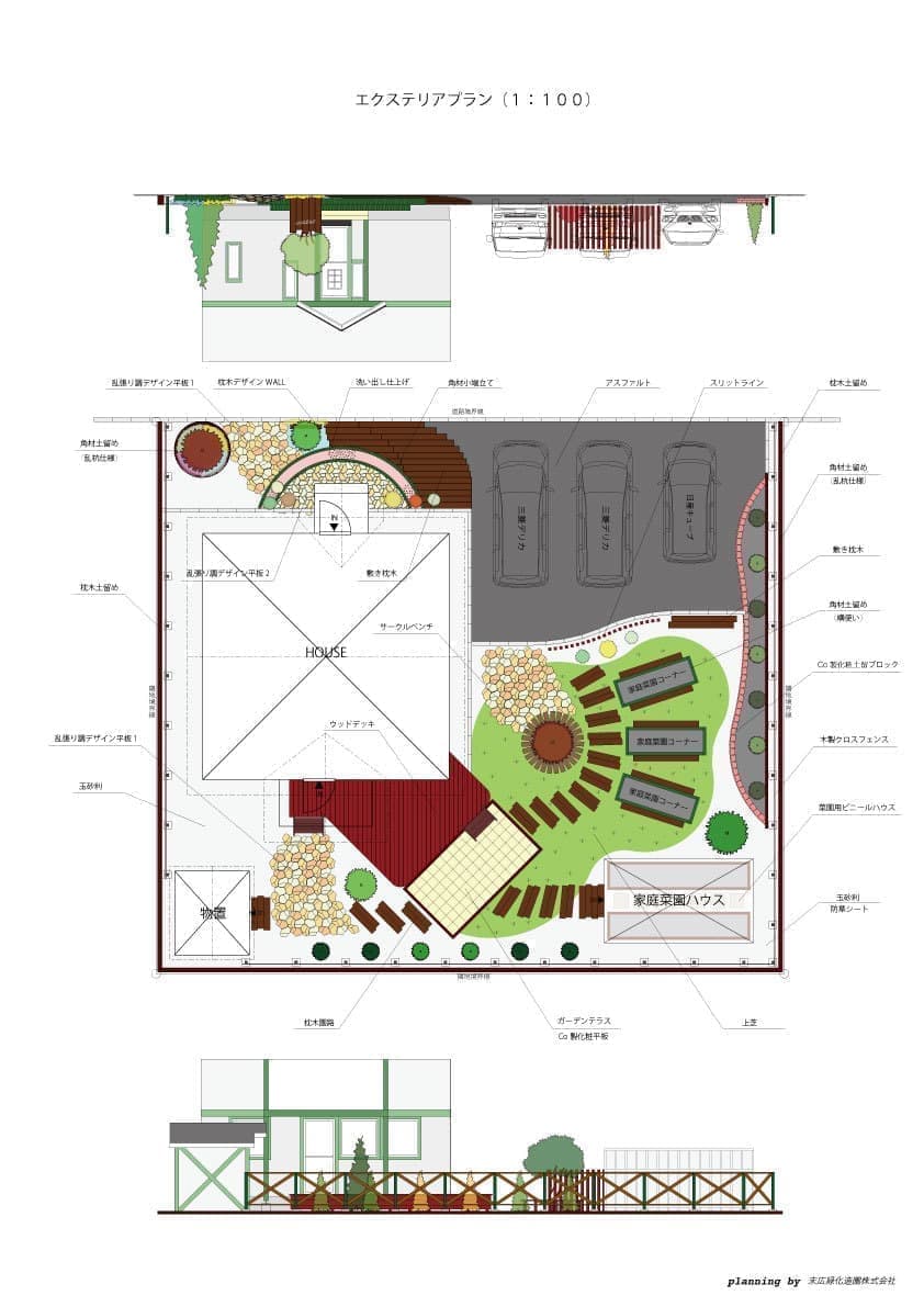
 初回プランニングの際にご提示する2Dプランです。 平面図と立面図の構成を柔らかなタッチの手描きタイプから、コンピュータCADによるタイプまで多彩です。お打ち合わせからお見積書の提示に至るまで、ほとんどの場合に必要な図面です。(その他、場合によっては構造図も描きます。)

平面&立面プラン1
平面&立面プラン2
平面&立面プラン3
平面&立面プラン4
平面&立面プラン5
平面&立面プラン6
平面&立面プラン7
平面&立面プラン8
平面&立面プラン9
平面&立面プラン10
平面&立面プラン11
平面&立面プラン12